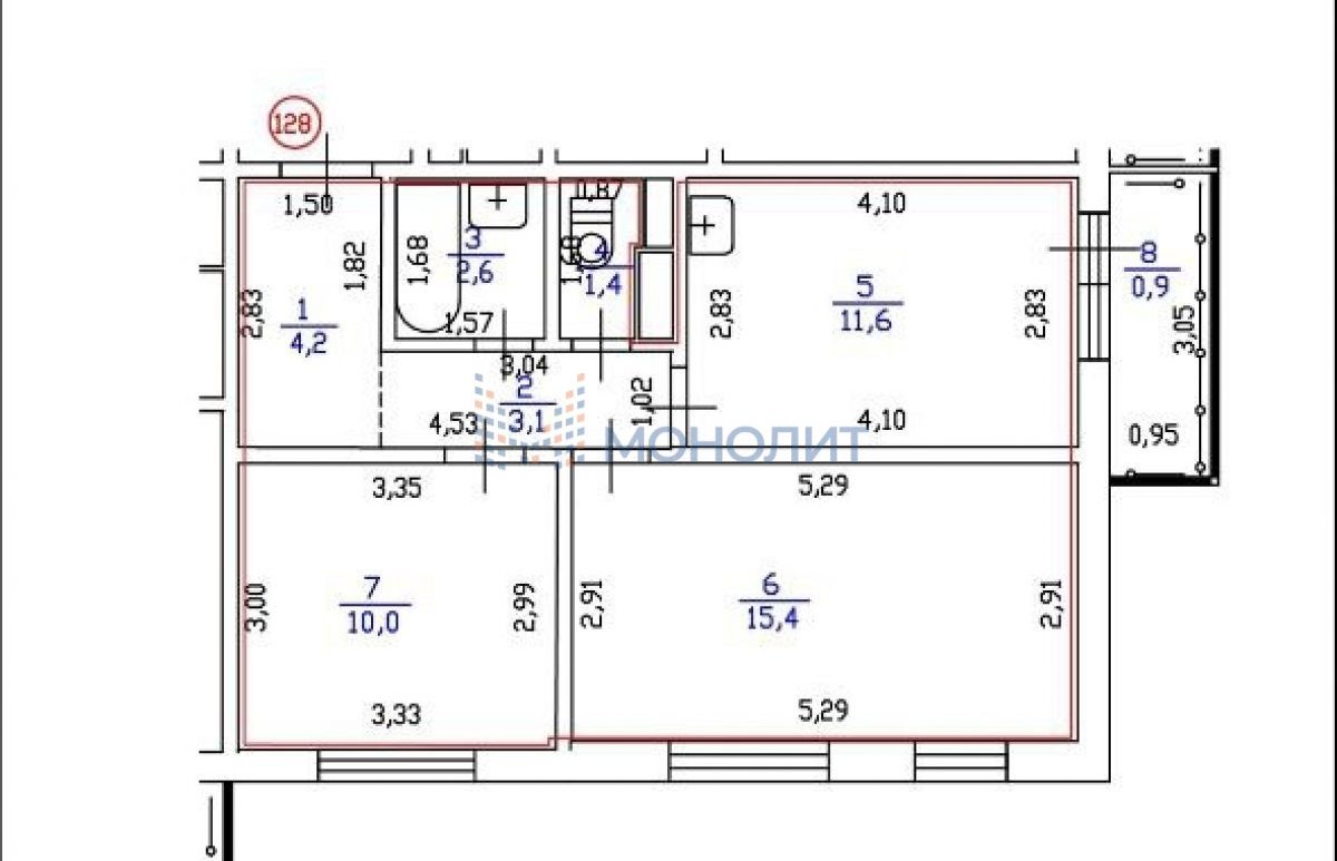
2-комнатная квартира, 50 м² - Объект 1644126
9 600 000 руб.
стоимость
В ипотеку 56 836 руб./мес.
Отправьте заявку
на ипотеку от АН Монолит,
чтобы снизить платеж
- Жилая площадь 38 кв.м
- Площадь кухни 12 кв.м
- Вид ремонта евроремонт
- Балкон/лоджия да
- Санузел раздельный
- Тип дома блочный
- Год постройки 2024
- Код объекта 1644126
Агент этого объекта
174 просмотра
Высокий спрос!
1 из
Смотреть панораму
Описание
Номер объекта: 1644126. 2‑комн. квартира, 50 м² — 9/10 ЖК «ТОРПЕДО»
* Продаётся отличная 2‑комнатная квартира на 9‑м этаже 10‑этажного нового дома. Общая площадь — 50 м². С новым евро ремонтом (делали для себя), балкон застеклён, с отделкой, с прекрасным видом на реку Оку. B квартире есть вся встраиваемая техника: посудомоечная машина, стиральная машина, микроволновая печь, духовой шкаф, вытяжка, холодильник. Так же в санузле установлен гигиенический душ и есть система умного дома. Квартира полностью укомплектована для проживания. Вся мебель и техника остается в квартире.
• Документы готовы к продаже.
• Инфраструктура (рядом)
• Аэропорт
• ТЦ «Лента»
• ТЦ «Крым»
* Сосновый Бор СТРИГИНО лыжная база.
•Детский сад. Недалеко находится школа 800
• Тихий район, удобная транспортная доступность. Вся инфраструктура в шаговой доступности.
Цена и контакты
• Приготовлены все документы, готовы к просмотрам и оперативной сделке. Возможен небольшой торг при осмотре.
Рядом расположены: ул. Бориса Видяева, Южное шоссе, Ореховская,
* Продаётся отличная 2‑комнатная квартира на 9‑м этаже 10‑этажного нового дома. Общая площадь — 50 м². С новым евро ремонтом (делали для себя), балкон застеклён, с отделкой, с прекрасным видом на реку Оку. B квартире есть вся встраиваемая техника: посудомоечная машина, стиральная машина, микроволновая печь, духовой шкаф, вытяжка, холодильник. Так же в санузле установлен гигиенический душ и есть система умного дома. Квартира полностью укомплектована для проживания. Вся мебель и техника остается в квартире.
• Документы готовы к продаже.
• Инфраструктура (рядом)
• Аэропорт
• ТЦ «Лента»
• ТЦ «Крым»
* Сосновый Бор СТРИГИНО лыжная база.
•Детский сад. Недалеко находится школа 800
• Тихий район, удобная транспортная доступность. Вся инфраструктура в шаговой доступности.
Цена и контакты
• Приготовлены все документы, готовы к просмотрам и оперативной сделке. Возможен небольшой торг при осмотре.
Рядом расположены: ул. Бориса Видяева, Южное шоссе, Ореховская,
Записаться на просмотр
Заказать обратный звонок
Перезвоним в течение 5 минут
Вход в личный кабинет
Регистрация на сайте
Займет пару минут