+7 (831) 283-38-98
Заказать звонок
Звоните нам с 9:00 до 20:00
Контакты
19 000 000 руб. стоимость

В ипотеку 40 052 руб./мес.

Отправьте заявку
на ипотеку от АН Монолит,
чтобы снизить платеж

  • 211 м² площадь
  • 89 920 руб. цена за м²
  • 2 этажа
  • Вид ремонта дизайнерский
  • Тип дома панельный
  • Код объекта 1746461

Агент этого объекта

Телефон агента:
Оставьте ваш номер, и агент перезвонит вам в течение 5 минут
Отправляя заявку вы соглашаетесь на обработку персональных данных
141 просмотр Высокий спрос!

Описание

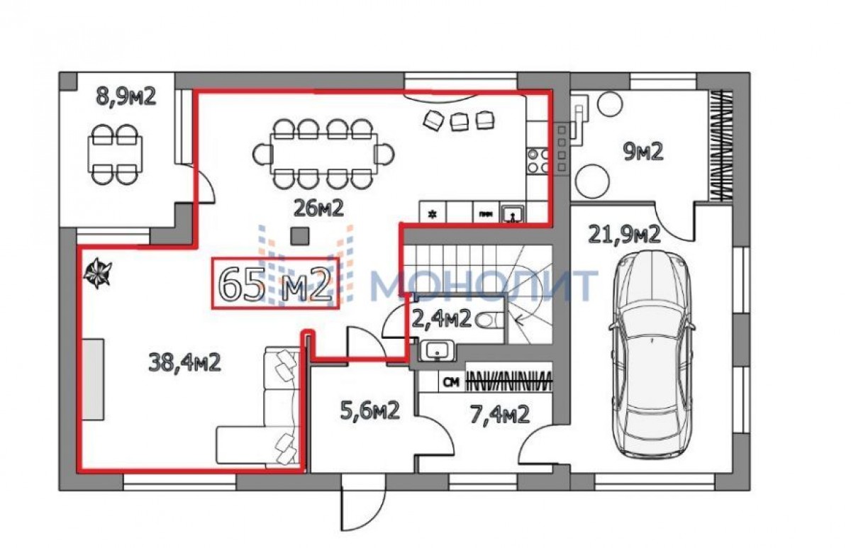
Продаётся стильный ,современный дом 211.2 кв.м. с земельным участком 7.3 сотки в ОИЗ Ригель на ул.Скульптора Гусева в Приокском районе. Рядом пр. Гагарина , микрорайон Щербинки, ул. Ларина. До Центра города - 30 минут на автомобиле. Дом год постройки - 2024 г. Участок ИЖС , видовой! При строительстве применялись современные, дорогие и качественные материалы и технологии. Территория закрыта от сквозного проезда шлагбаумами, планируется выезд на ул. Ларина (дублёр пр. Гагарина.) На первом этаже кухня - гостиная 65 кв.м., на втором этаже - четыре комнаты (18.6 + 14.0 + 12.6 + 11.5 ) кв.м. Два сан/узла. Коммуникации: Газ, вода, электричество, заведены в дом. Вода - скважина 42 метра, итальянский насос UNIPAMP ECO MIDI-2.Канализация - септик из 2 - х колодцев по 4 кольца 1,5 м, переливной. Фундамент - лента 400 * 900мм + плита 200мм с двойным армированием d12, ячейка 300мм. Стены - 500 мм, керамзитобетонный блок (современный ,очень прочный и тёплый материал )Крыша - гибкая черепица Docke premium Цюрих.Водосточка - Docke Lux 100 мм. Окна - профиль Rehau 70 мм. Дверь - для коттеджей, с терморазрывом, усилённая 3 петли, 2 замка gardian. Отопление - котёл Baxi Luna 3одноконтурный + бойлер косвенного нагрева 150 л. Резервный электрический котёл на 12 кВт, на случай обслуживания газового котла.Электрика и интернет разведены по всем точкам по проекту. Высококачественная штукатурка стен под обои.Остаётся чистовая отделка по дизайн - проекту ( обои или покраска, плитка ламинат на выбор ).Дороги асфальтированы. 2 км. от конечной остановки автобуса 31, магазинов Спар, Магнит, Бристоль, КБ, Чижик, школа 134,17,32,34.Спортивная база GREEN TERRA . Чистая продажа! Документы готовы! Быстрый выход на сделку!Звоните! Покажем в любое для Вас удобное время!Приокский район.````,``

Номер объекта: #5/1746461/11523

Ипотечные программы на это жилье

Рассчитайте ваш платеж по ипотеке

Ипотека с нами, это:

  • Экономия времени, нет необходимости лично посещать офисы банков
  • Мы отправляем заявки сразу в несколько банков
  • В 90% случаев мы получаем положительное решение на оформление ипотеки

Оформить с экспертом

Оставьте ваш номер, и ипотечный брокер перезвонит вам в течение 5 минут
Отправляя заявку вы соглашаетесь на обработку персональных данных

Не хочу искать, перезвоните мне!

Заполните заявку на подбор недвижимости. Наш специалист свяжется с Вами и ответит на все вопросы!

Отправляя заявку, вы соглашаетесь на обработку персональных данных
Не хочу искать, перезвоните мне!
Акции по новостройкам

Скидки и рассрочки от застройщика

Спешите записаться на просмотр!

Подробнее